2020年03月27日
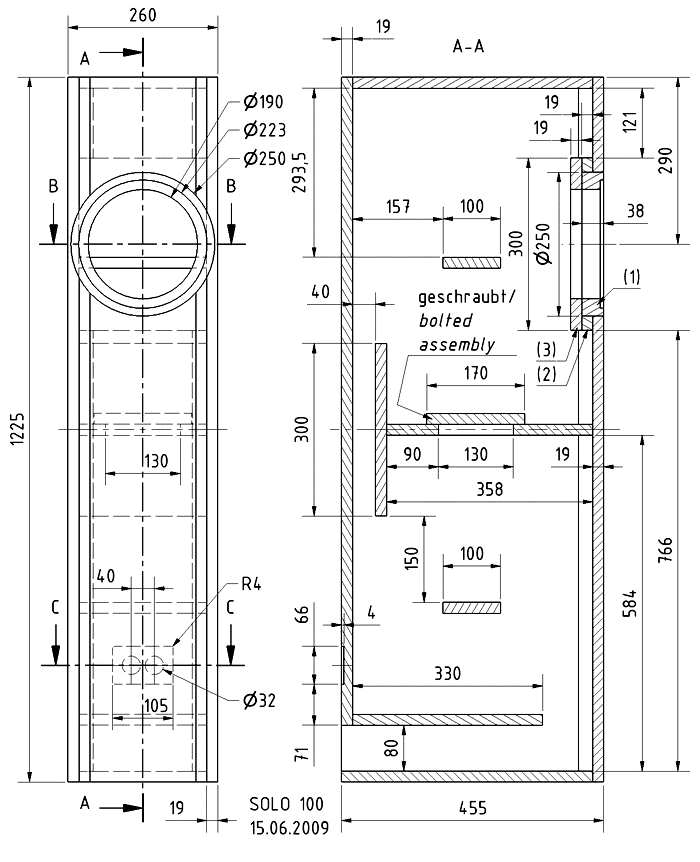
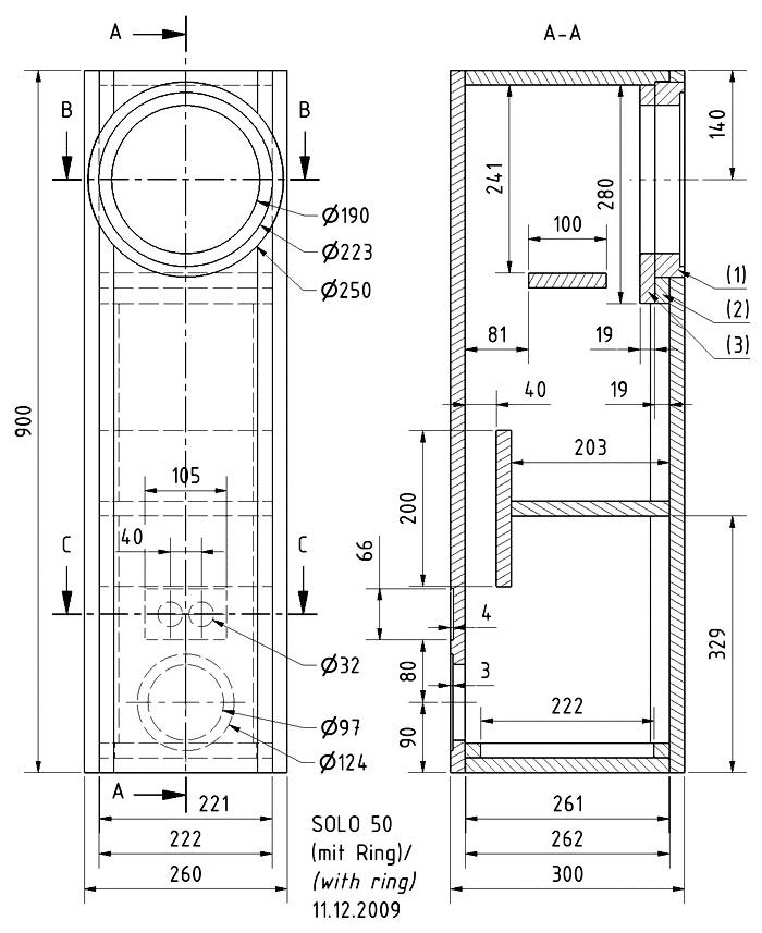
SOLO50/100

これはダブルバスレフではないか!?
SOLO100は本格的なダブルバスレフで、SOLO50はバスレフにバンドパスフィルターを加えた感じか?
パッシブLCRイコライザーを推奨しているのも面白い。
ダブルバスレフは学生の頃に何度も製作し、特徴はよくわかる。
エンクロージャーの音が支配的で、どんなユニットを付けても同じような低音が出る。
レンジの広さは圧倒的で、8cmフルレンジでさえ40Hzを出すことができる。
オルガンやコントラバスを深々と雄大に鳴らすが、 群遅延が悪く、単調になりがちで、パルシブな音楽はやや苦手とする。
2つのボックスが直列に接続されることでフィルター効果が高く、高域の漏れが少ないのも特徴。
中域の制御に課題があり低域の群遅延特性は最高となるTLS(トランスミッションライン)とは対照的かもしれない。
サイズは同じくらいになるが、今作るならTLSをやってみたい。
日本国内では長岡系かシンプルなバスレフがほとんどだが、海外DIYerは作例もバラエティに富んでいる。
発想が自由かつ実証的でDSP等によるイコライジングにもアレルギーがない。VISATONのウェブサイトを見ていると、そうしたDIYの素地が違うなと思う。












































